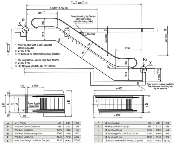
Dòng thang cuốn của Công ty thang máy LuxHome đáp ứng được sự mong đợi của khách hàng. Sử dụng rộng rãi tại các trung tâm mua sắm, siên bay, v.v… Thang cuốn FUJI thực sự tôn thêm vẻ đẹp và sự hiện đại cho các tòa nhà.

Ảnh thang cuốn trung tâm thương mại






Đánh giá
Chưa có đánh giá nào.