Hệ thống cửa cabin của thang tải thực phẩm thường là mở bằng tay theo chiều dọc, cửa dạng một cánh, hoặc hai cánh trượt lên xuống hai phía. Nội thất cabin thường là Inox sọc nhuyễn, có thiết kế sang trọng, dễ sử dụng và chuyển động êm ái v.v… Tại mỗi cửa tầng đếu có switch điện an toàn. Hệ thống ray dẫn hướng cho cabin và đối trọng là ray chữ T – loại chuyên dụng cho thang máy. Hiển thị báo tầng, chiều chuyển động của thang bố trí tại mỗi cửa tầng.

Thang máy tải thực phẩm

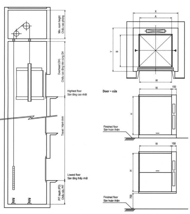
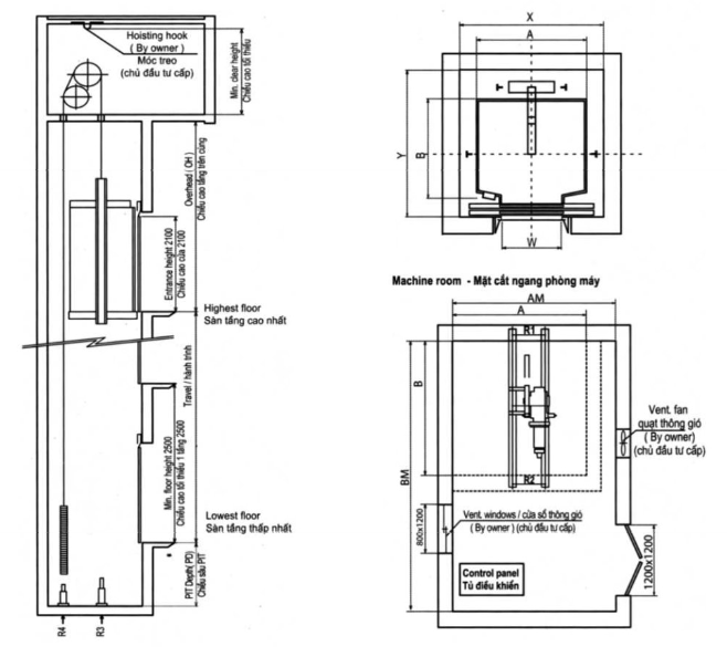
Bản vẽ thang máy tải thực phẩm


Đánh giá
Chưa có đánh giá nào.