Thang tải hàng có các đặc điểm chuyên dụng như đảm bảo về mặt an ninh, độ tin cậy, vận hành êm ái, khả năng tải trọng lớn v.v… Có thể ứng dụng tốt cho các môi trường là nhà máy, nhà kho, các trung tâm mua sắm, thư viện v.v… Nó có thể đáp ứng mọi yêu cầu khắt khe của khách hàng, dòng thang tải hàng LuxHome thực sự là một phương tiện chở hàng hữu dụng.
Quý khách cần lưu ý khi xây dựng phòng máy và hố thang, các vấn đề sau:
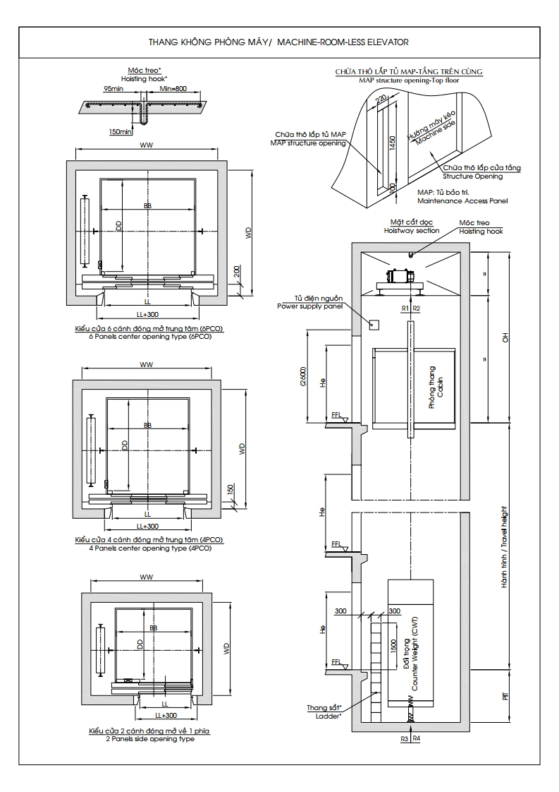
– Xây dựng phòng máy thang máy tải hàng: Khi xây dựng phải chừa chiều cao cho đúng quy định để puly có đủ góc ôm và cáp thang máy hoạt động tốt, việc này ảnh hưởng đến chất lượng của thang, móc treo palang trên nóc phòng máy. Độ ẩm và độ thông thoáng của phòng máy cũng rất quan trọng khi xây dựng phòng máy, việc này ảnh hưởng đến sự hoạt động của các thiết bị máy móc trong phòng. Đặc biệt để ngăn chặn người lạ không có phận sự đi vào phòng thì nên có ổ khóa để việc kiểm soát người ra vào dễ dàng hơn. Khi xây dựng phòng máy nên có cầu thang bộ hoặc thang sắt nhằm dễ dàng cho sửa chữa vào bảo trì.
Ảnh: Thang máy tải hàng
– Xây dựng hố thang máy tải hàng: Khi xây dựng hố thang cần phải thi công đúng kích thước và tỉ lệ của bản vẽ, không được sai xót quá mức cho phép là 10mm. Chống thấm triệt để cho hố PIT nhằm đảm bảo không thấm nước. Xây dựng đà bê tông đúng kỹ thuật để treo cửa tại tất cả các tầng. Để trống chỗ để chỗ lắp đặt bảng nút bấm tầng. Đặc biệt thành giếng không bị dột để tránh ảnh hưởng đến cabin.
Đặc điểm thang máy tải hàng – máy kéo:
– Hệ thống hoạt động được thiết kế lập trình vi xử lý làm tăng khả năng an toàn tin cậy, khả năng đáp ứng linh hoạt theo các điều kiện sử dụng khác nhau ở các nhà máy, tiện lợi cho việc vận chuyển hàng hóa, nguyên vật liệu đáp ứng cho các dây chuyền sản xuất.
– Hệ thống điều khiển dẫn động cửa sử dụng loại biến đổi điện áp – tần số VVVF dùng loại cửa có kich thước vửa và nhỏ, sử dụng loại truyền động DC cho loại cửa có kích thước lớn làm gia tăng công suất và tính bền vững của hệ thống.
– Điều khiển động cơ: sử dụng điều khiển tốc độ vô cấp, bằng hệ thống biến đổi tần số và điện áp (VVVF) làm tiết kiệm điện năng, dừng tầng chính xác giúp cho việc vận chuyển kết hợp với xe nâng dễ dàng.


Đánh giá
Chưa có đánh giá nào.