Chưa có sản phẩm trong giỏ hàng.
Nguyên lý hoạt động Thang máy thông dụng hiện nay là Thang máy dùng Cáp [...]
Mặc dù được sản xuất và lắp đặt theo các tiêu chuẩn khắt khe về [...]
Trên thực tế đã có rất nhiều sự cố rơi thang máy, tai nạn thang [...]
Hiện nay, nhu cầu lắp đặt thang máy gia đình ngày càng tăng cao nhờ [...]
Các dòng thang máy gia đình hiện nay đều được sản xuất một cách chỉn [...]
Thời gian gần đây, tình trạng thiếu nguồn cung điện đang trở thành vấn đề [...]
Nút bấm là một bộ phận quan trọng trong cabin, giúp hành khách lựa chọn [...]
Nút bấm thang máy là một bộ phận nhỏ trong toàn bộ hệ thống cấu [...]
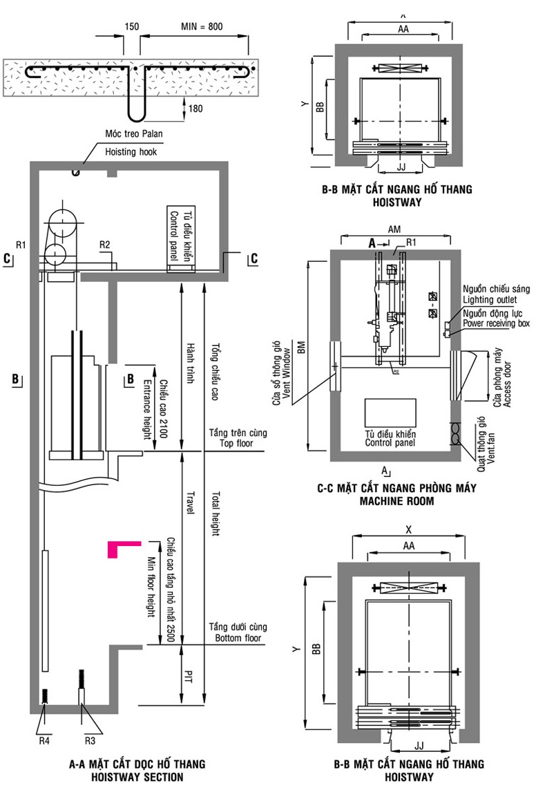
Hố thang máy là một trong những bộ phận quan trọng trong kết cấu của [...]
Tên tài khoản hoặc địa chỉ email *
Mật khẩu *
Ghi nhớ mật khẩu Đăng nhập
Quên mật khẩu?